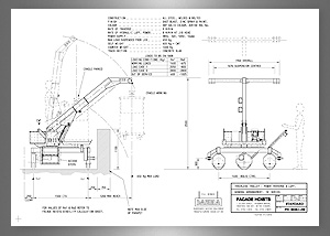
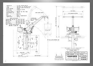
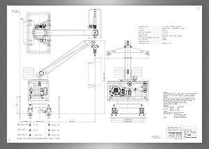
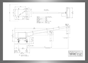
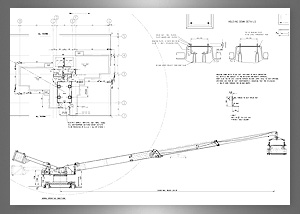
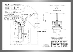
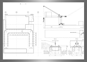
Facade Hoists system installed
_